Este apartamento T3 em São Vicente, Braga, é a combinação perfeita de conforto e funcionalidade.
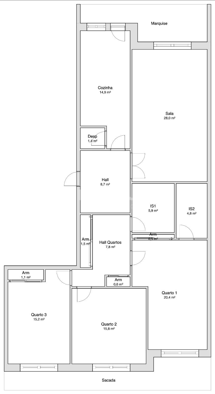
Com 173m2 de área, este apartamento tem uma cozinha totalmente equipada, pronta para as suas aventuras culinárias. Este apartamento tem também uma espaçosa suite. A lareira com recuperador de calor e o aquecimento central garantem um ambiente acolhedor durante todo o ano. Com pré-instalação de aspiração central, a limpeza será uma tarefa fácil.
O imóvel, além de ter uma ótima exposição solar, conta também com duas amplas varandas, ideais para relaxar e desfrutar das vistas fantásticas. A despensa e a marquise oferecem espaço extra para armazenamento e outras utilidades. Todos os quartos possuem roupeiros embutidos, proporcionando organização e praticidade. Além disso, a garagem fechada acomoda até dois carros, garantindo segurança.
Este apartamento é a escolha perfeita para quem procura qualidade de vida em Braga.









































